PRODUCT
製品情報

自家発電制御のゼロエネルギードアー
ハイブリッド ドアー

挟み込み防止ストップセンサー制御
自家発電機構内蔵
電気工事不要の安全・安心な半自動ドアー

ハイブリッドドアーはご高齢の方や、お身体の不自由な方でも、安全にご使用いただけるストップセンサー制御の半自動ドアーです。

ハイブリッドドアーの特長

開閉が軽く静か

開閉が軽く静か

手で軽く開くだけ(600gの力(ドアー50kgの場合)で開き、開閉時の音もきわめて静かです。
ストップセンサー機能

ストップセンサー機能

ストップセンサーが人や物を感知して、ドアの閉作動を ストップさせます。センサーはドアの両側に働いているのでゆっくり通過することができます。
通過後は自動で 閉まります。(センサー感知範囲、作動時間等は調整可能です。)

バリアフリー

バリアフリー

引き戸は上吊り式ですので、床にレールをつける必要が ありません。開き戸のように扉の可動スペースを必要としませんの安心で確実です。
リニューアルが簡単

リニューアルが簡単

電気・配線工事が不要ですから、システム本体が取り付け可能ならば、現在お使いの引き戸や開き戸も、リニューアルが容易です。
医療機器への影響が少ない

医療機器への影響が少ない

自家発電ですので電気系統への干渉がありません。ノイズ・電磁波試験をクリアしているので医療機器などへの影響がなく、病院やその他、精密機器を設置している環境でも安心してご使用に慣れます。
ストップ&ブレーキシステム

ストップ&ブレーキシステム

ドアが閉まってくるときは、ブレーキ制御でゆっくりとドアを閉めます。レントゲン室の重量扉にも対応しておりますので安心して出入りすることができます。

ラインナップ一覧

ハイブリッドドアー

引き戸 巾 DW

750≦DW≦1500

引き戸 高 DH

1800≦DH≦2200

引き戸 重量 M

25≦M≦60

レール勾配

18⁺¹₀/1000

傾斜角度

0° 40′

ハイブリッド ドアー(重量用)

引き戸 巾 DW

900≦DW≦2200

引き戸 高 DH

1800≦DH≦2200

引き戸 重量 M

70≦M≦200

レール勾配

25≦M<30:18⁺¹₀/1000
30≦M<40:15⁺¹₀/1000
40≦M≦60:12⁺¹₀/1000

傾斜角度

25≦M<30:0° 60′
30≦M<40:0° 50′
40≦M≦60:0° 40′

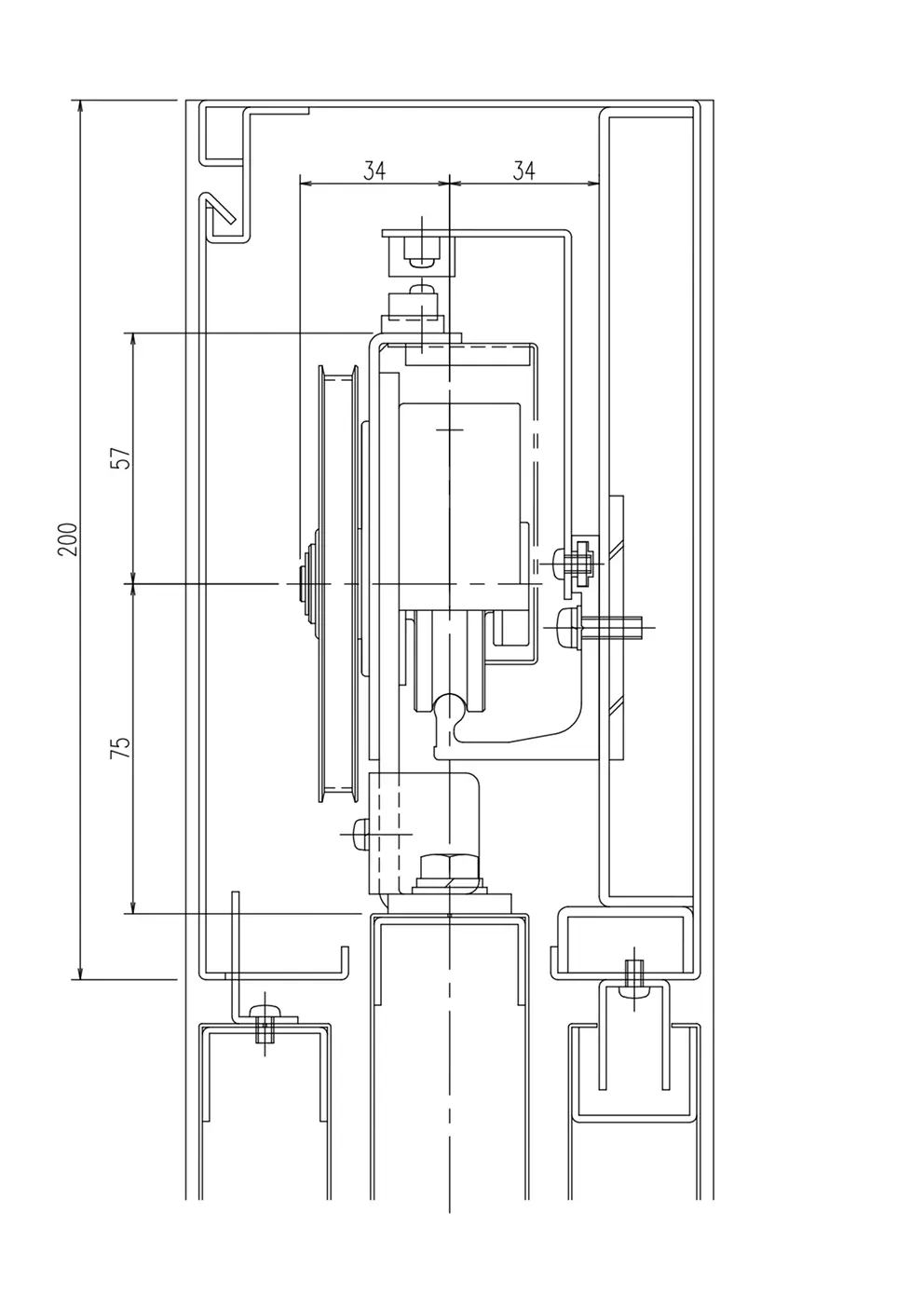
HYB駆動吊車納まり図

HYB駆動吊車納まり図

製品仕様

使用環境

  • 屋外設置:風、雨、直射日光の当たる場合は取付け不可。
  • 薬品等を扱う場所:酸、塩、アルカリ等の常時ある、または強い雰囲気は取付け不可。
  • 汚れ、水滴発生の多い場所:油煙、水蒸気、ホコリ等の多量発生する場所は取付け不可。
  • 高温・低温になる場所:40℃以上になるところ、または0℃以下になるところは取付け不可。
  • 遮音が必要な場所:外音が入ったり、音洩れが不可な場所は取付け不可。
  • 気密が必要な場所:外気流入、内気洩れ不可、または内外気圧差を要する場所は取付け不可。
  • 法的規制のある場所:防火扉、遮煙扉として取付けは不可。

他の製品を見る

無配線式煙感知器連動システム

火災時に煙感知器からの信号を排煙窓オペレーターが受信して自動で排煙窓を開いて煙による被害を防ぎ、素早く避難ができます。複雑な配線工事不要で、リニューアルにも最適です。

オート ハイブリッド ドアー

独自のスパイラルシャフト機構で駆動し、静音性に非常に優れた電動ドアです。小型設計、停電時は手動でも開閉ができます。

A-BLIND

強風にも耐える外付けブラインド、独自の昇降機構でダブルスキンキャビティ内の設置を可能にしました。窓から入る日差しにより、室内温度が上昇するのを防ぎます。
DOWNLOAD

カタログダウンロード

豊和総合カタログや各製品の詳細を紹介する製品カタログなどをご用意しております。